︎
About
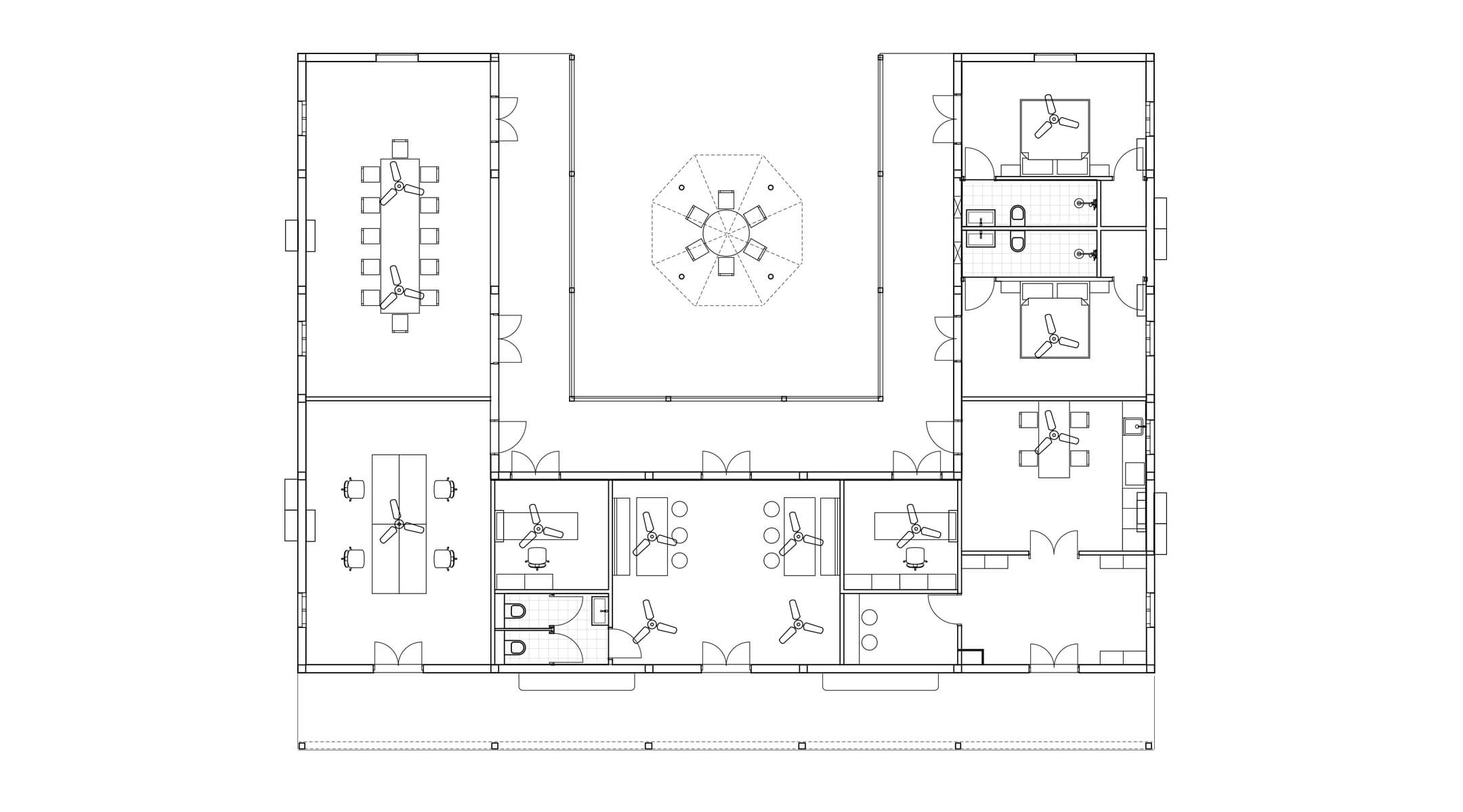
OFFICE RBGV
1/5 2/5 3/5 4/5 5/5